Preis
1,065,000 EUR
Ref. ID :
BI-AL.H-032
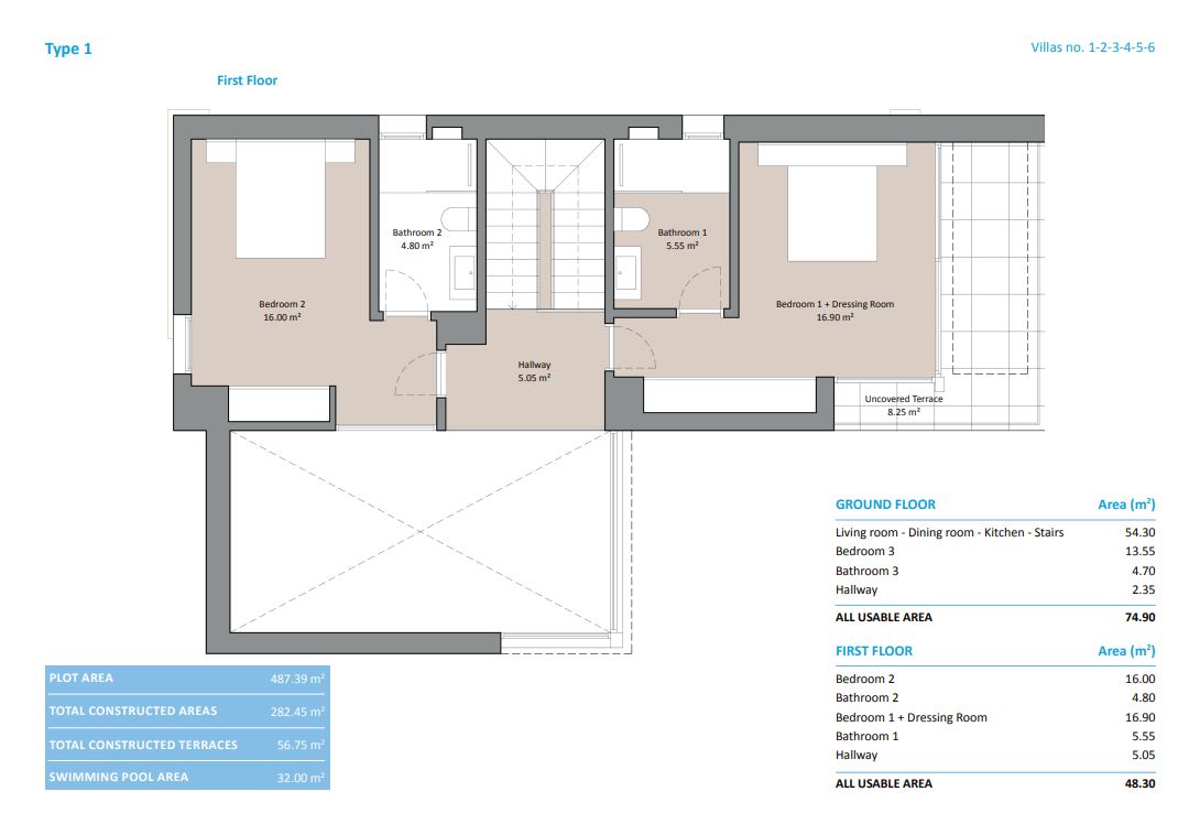
Neue Villen mit Meerblick zu verkaufen in Finestrat, Sierra CortinaWillkommen in diesen atemberaubenden Neubauvillen im idyllischen Finestrat, wo moderner Luxus auf Natur trifft. Diese moderne Villa ist Teil einer stilvollen Urbanisation mit insgesamt 15 Villen. Mit einem atemberaubenden Blick auf die Skyline von Benidorm und das Mittelmeer bietet diese Immobilie eine einzigartige Kombination aus städtischem Leben und natürlicher Pracht.Das Haus, dessen Fertigstellung für Ende 2024/Anfang 2025 geplant ist, strahlt zeitlose Eleganz aus. Die Lage ist ideal, denn das Einkaufszentrum CC La Marina ist nur 2 km entfernt und der luxuriöse Komplex Asia Gardens ist zu Fuß erreichbar.Genießen Sie das sonnendurchflutete Ambiente und die Ruhe, die diese Villa zu bieten hat. Große Fenster sorgen für reichlich natürliches Licht, so dass sich das Innere nahtlos in die schöne Umgebung einfügt. Die verwendeten Materialien sind von höchster Qualität und tragen zur Langlebigkeit und zum luxuriösen Aussehen des Hauses bei. Die Villa verfügt über 3 Schlafzimmer und 3 Bäder.Die Energieeffizienz der Immobilie ist bemerkenswert; jeder Aspekt wurde für eine optimale Energienutzung konzipiert. Die Villa verfügt über einen schönen Garten, der mit Bäumen, Kunstrasen und einem automatischen Sprinklersystem ausgestattet ist, so dass Sie den Garten mit Leichtigkeit genießen können.Sie haben die Wahl: Die Villa kann mit oder ohne Keller und Tiefgarage geliefert werden. Die Schlafzimmer haben motorisierte Rollläden für zusätzlichen Komfort und Sicherheit. Die Immobilie verfügt über eine Sicherheitstür, ein automatisches Eingangstor, eine Klimaanlage (warm/kalt), ein Warmwassersystem mit Solarkollektoren und einem elektrischen BackupBoiler, ein Hausautomatisierungssystem und hochwertige Küchengeräte von Bosch (oder ähnlich).Mit einem Preis ab 1.065.000 Euro bietet diese exklusive Villa eine unvergleichliche Kombination aus Luxus, Komfort und modernen Annehmlichkeiten. Überzeugen Sie sich selbst und werden Sie Teil dieses einzigartigen Stücks Paradies in Finestrat. Weitere verfügbare Modelle in der gleichen Gegend finden Sie unter den Referenzen AL.H033 und AL.H034.Der angegebene Preis enthält keine Steuern und Kaufkosten / Das Angebot gilt vorbehaltlich von Irrtümern, Preisänderungen, Verfügbarkeit, Unterlassung und / oder Rücktritt vom Markt ohne Vorankündigung / Möbel und Inhalte nach individueller Vereinbarung und nicht nach den Fotos in der Präsentation



















VILLA – BI-AL.H-033 – Finestrat
| Cookie | Dauer | Beschreibung |
|---|---|---|
| cookielawinfo-checkbox-analytics | 11 months | This cookie is set by GDPR Cookie Consent plugin. The cookie is used to store the user consent for the cookies in the category "Analytics". |
| cookielawinfo-checkbox-functional | 11 months | The cookie is set by GDPR cookie consent to record the user consent for the cookies in the category "Functional". |
| cookielawinfo-checkbox-necessary | 11 months | This cookie is set by GDPR Cookie Consent plugin. The cookies is used to store the user consent for the cookies in the category "Necessary". |
| cookielawinfo-checkbox-others | 11 months | This cookie is set by GDPR Cookie Consent plugin. The cookie is used to store the user consent for the cookies in the category "Other. |
| cookielawinfo-checkbox-performance | 11 months | This cookie is set by GDPR Cookie Consent plugin. The cookie is used to store the user consent for the cookies in the category "Performance". |
| viewed_cookie_policy | 11 months | The cookie is set by the GDPR Cookie Consent plugin and is used to store whether or not user has consented to the use of cookies. It does not store any personal data. |